スポーツランド・プール
(施設の予約・問い合わせ)スポーツランド 電話番号:076-294-5800
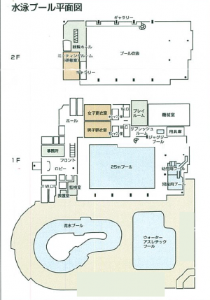
プール
施設内容
- 室内プール 25メートルプール、児童・幼児用温水プール、ジャグジープール
- 屋外プール 流水プール、アスレチックプール ※屋外プールは夏季限定です。屋外プール開設期間はこちら
- 研修室

利用時間
- 〈月曜日から土曜日〉10時から21時(遊泳時間は20時45分まで)
- 〈日曜日・祝日〉10時から17時(遊泳時間は16時45分まで)
休館日
- 毎週火曜日(火曜日が祝日にあたるときは翌日を休館)
- 12月27日から1月5日
利用案内
- 3年生以下のお子さんは必ず保護者(大学生以上)の同伴が必要です。(保護者1人につき、児童2人まで)
- 3才以上でおむつの完全にとれた人から利用できます。
- 3才未満は、プールサイドにも入れません。
- 中学生以下は午後6時以降、保護者の同伴が必要です。(小学4年生以上のお子様については、2階ホールからでも可)
- プール使用時はご利用状況別に、別途のとおりスポーツランドで用意した色別の水泳キャップを装着していただく必要があります。
- 水泳キャップの色分け及び利用可能プール [PDFファイル/269KB]
- 水泳遊具一覧[PDFファイル/187KB]
- テニスコート
- さわやかホール
使用料
| 区分 | 単位 | 使用料 | ||
|---|---|---|---|---|
| 平水時 ※屋外プール開設期間 |
個人 | 一般 | 1回 | 200円 |
| 高校生以下 | 100円 | |||
| 専用(1コース) | 1時間 | 600円 | ||
| 温水時 | 個人 | 一般 | 1回 | 400円 |
| 高校生以下 | 200円 | |||
| 専用(1コース) | 1時間 | 1,700円 | ||
| 研修室 | 1時間 | 300円 | ||
- プール年間利用券の料金は、13,200円です。ただし、高校生以下および65歳以上は、6,600円です。
(年間利用券の発行に必要な書類等はこちらでご確認ください) - 65歳以上の人は、第3土曜日(7月、8月を除く)および敬老の日は無料
- スポーツの日は年齢を問わず無料
- プレミアムパスポート提示の18歳未満は無料
- 障害のある方に対する使用料減免制度あり(受付で障害者手帳を提示してください。使用料が全額減免となります。また、介護者の方についても1名まで使用料が全額減免となります。)
専用使用については、本市に住所を有しない者が使用する場合の使用料は、この表に定める使用料の1.5倍に相当する額とします。
申し込み
- 専用使用(5人以上)
使用日の1カ月前の日の属する月の初日から使用日の3日前まで野々市市スポーツランドで受付します。また、土曜日・日曜日及び祝日の専用使用はできません。 - 個人使用
使用日の当日に限り、野々市市スポーツランドで受付します。


